Produktdatabas
Fönster & fönsterdörrar
VELFAC 200 ENERGY
VELFAC Ribo
VELFAC Classic trä/alu
VELFAC Classic trä
VELFAC Edge
VELFAC In
VELFAC Brandelement
Ytterdörrar
VELFAC Ribo ytterdörrar
VELFAC Classic trä/alu ytterdörrar
VELFAC Classic trä ytterdörrar
VELFAC branddörrar
Download centre
System-ritningar
3D BIM object
Inbyggnadsritningar
Montage och justering
Drift och skötsel
Skötselanvisningar
Prestandadeklarationer (DoP)
Produktspecifika EPD:er
Teknisk beskrivning
Resurscentrum
Inloggning (Bara medarbetare)
Produkt databas
Gå till VELFAC.se
VELFAC Produktdatabas
Fönster & fönsterdörrar
VELFAC Brandelement
Ritningar
Fönster & fönsterdörrar
VELFAC Brandelement
Systeminformation
Öppningsfunktioner
Rutor
Ritningar
Testinformation
Vägledningar
Ritningar
Systemritningar
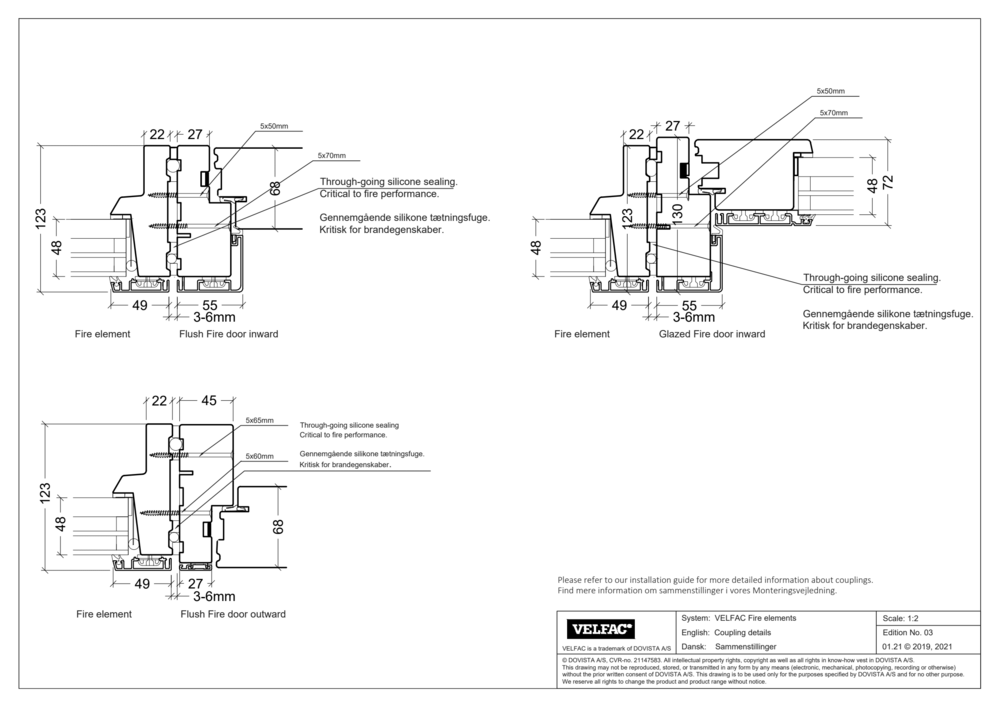
Här hittar du VELFAC brandelement systemritningar.
Ritningarna kan laddas ner som DWG- och PDF-filer och kan utan begränsning användas vid projektering med VELFAC.
Brandelement
Not och påföringar
Sammanställningar
Sammanställningar med VELFAC brandelement och VELFAC Branddörr som DWG- och PDF-filer är under uppbyggnad.
Sektionsritningarna kan utan begränsning användas vid projektering med VELFAC.
VELFAC brandelement - VELFAC branddörr